
Котел 250 КВт газовый в Астрахани
Цена 306 000 рублей с НДС
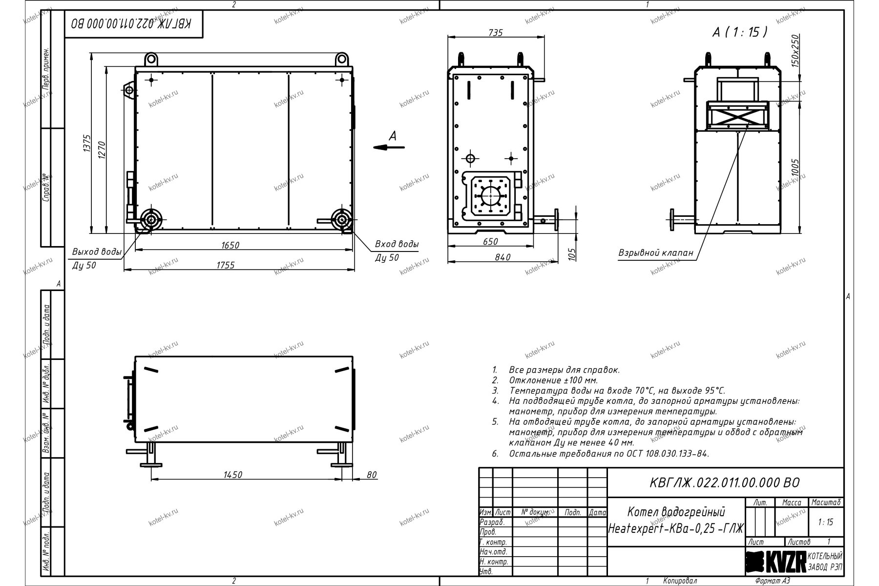
Газовый трехходовой гладкотрубный котел:
• быстрый нагрев воды
• высокая тепловая эффективность и маневренность
• долговечность и надежность конструкции
• низкие требования к качеству воды
• компактные размеры
• взрывобезопасность
Модель работает с российскими горелками EMMA и импортными горелками UNIGAS, BALTUR, ECOSTAR.
Также наш завод выпускает модели котлов данной мощности работающие с отечественными горелками марки РГМГ, ГБЛ, ГМ, ГМГ, АПНД, ГГ. Их стоимость вы можете уточнить в отделе сбыта.
Марка котла | Котел КВа Г, Котел КВа ГН, HeatExpert | Гидравлическое сопротивление при перепаде t, МПа (кгс/cм²) | Не более 0.07 (0.7) |
---|---|---|---|
Вид топки | Газовая горелка | Аэродинамическое сопротивление, Па (мм. вод. ст.) | 290 |
Максимальная тепловая мощность, кВт | 250 | Разряжение в топочной камере, Па (мм. вод. ст.) | 20-40 (2-4) |
Максимальная тепловая мощность, МВт | 0.25 | Расход уходящих газов, м³/ч | 550 |
Максимальная тепловая мощность, Гкал | 0.21 | Температура уходящих газов, °C | 170 |
Диапазон регулирования мощности, кВт | 40-100 | Тяга | Принудительная |
Топливо | Газ | Водяной объем котла, л | 250 |
Низшая теплота сгорания топлива ГАЗ, кКал/нм³ | 9400 | Объем топочной камеры, м³ | 0.46 |
КПД (ГАЗ), не менее, % | 91 | Размер топочной камеры, длина*ширина*высота, мм | 1450х450х700 |
Расход топлива среднечасовой за отопительный сезон, м³/ч | 15 | Присоединительные размеры по водяному тракту, Ду | 50 |
Расход топлива при максимальной нагрузке котла (ГАЗ), м³/ч | 26 | Присоединительные размеры газохода уходящих газов, ширина*высота / сечение, мм/м² | 250х150/0.04 |
Расход условного топлива, кг/ч | 35 | Габаритные размеры котельного блока, длина*ширина*высота, мм | 1755х840х1375 |
Отапливаемая площадь, м² | 1500-2600 | Масса, кг | 650 |
Отапливаемый объем, м³ | 5000-8000 | Тип котла | Водогрейный |
Температура воды, °C | 70-95, 90-115 | Энергоэффективность | Высокая |
Давление рабочей среды, МПа (кгс/cм²) | 0.3-0.6 | Бренд | HeatExpert |
Расход теплоносителя среды, м³/ч | 9 |
Это устройство работает со вспомогательным оборудованием, которое приобретается отдельно. Если вы хотите сразу узнать стоимость всей установки, добавьте заинтересовавшие вас позиции в корзину. Чтобы точно расчитать стоимость доставки до вашего объекта, укажите его адрес в корзине и оправьте нам заявку. Обычно мы отвечаем в течение дня.
Котел КВа 0.25
Водогрейный котел КВа 0.25
Промышленный котел КВа 0.25 МВт
Котел КВа 0.25 изготовление
Котел КВа 0.25 производство
Котел 250 КВт газовый
Основные характеристики:
- мощность 250 КВт, 0,25 МВт, 0,21 ГКал;
- максимальная температура 115 град;
- топливо – газ низкого и среднего давления;
- горелка – импортная/отечественная;
- давление не более 0,6 МПа;
- отапливаемый объем от 5000 до 8000 м3 (в зависимости минимальной температуры в регионе эксплуатации). Проверить или подобрать мощность котла в Астрахани или любого другого города вы можете по ссылке.
- устанавливается в котельных административных, производственных зданий и отопительных котельных ЖКХ.
Устройство и описание
Конструкция газового котла водотрубная – водогрейный котел 250 КВт изготавливается из стальных труб диаметром 57 толщиной стенки 3- 3,5 мм сталь 10. Конвективная часть выполняется из трубы 32 сталь 20. Каркас изготавливается из профильной трубы, уголка и швеллера. Тепловая изоляция состоит из плиты ПТЭ. Наружная обшивка выполнена из стального листа. В котле установлен взрывной клапан.
Конструкция теплогенератора состоит из двух блоков - топки и конвективной части. На фронте котла изготавливается дверка для обслуживания топочной камеры. В дверке изготавливается отверстие с креплением под горелку. Для наблюдения за топочным процессом, имеется гляделка со смотровым стеклом. Горячие газы выходят из топки вверху топочной камеры и поступают в конвективные секции. Секции конвективных пакетов устанавливаются блоком. Горячие газы из котельного блока выходят в задней части сверху.
Горелочное устройство для данного котла – “CIB UNIGAS S. p. A.” NG550 M-.PR.S.RU.A.0.32. В случае вашего намерения установить горелку иного производителя, необходимо произвести проверку совместимости по длине и ширине угла раскрытия факела горелки. При набросе факела горелки на стенки топки возможно прогорание труб. Котельный завод производит проверку и в случае необходимости может изменить габаритные размеры топки и котельного блока, по выбранную вами горелку.
Циркуляция котла газового 250 КВт обеспечивает быстрый нагрев воды и выход на требуемую мощность. Локальные перегревы отдельных зон поверхностей нагрева исключаются точностью производимых расчетов гидравлики. Дренажи и воздушники производят дренирование трубной системы от шлама и удаление скапливающего воздуха.
Принцип работы газового водогрейного котла 250 КВт
Циркуляция воды в котельном агрегате производится циркуляционным насосом. Для восполнения теплоносителя, теряемого при дренировании и в теплосети, производится подпитка подпиточным насосом.
Для горения топлива вентилятором в топку подается воздух. Дымовые газы проходят трубную систему котельного блока и поступают в газоходы котельной. При работе с импортными горелками под наддувом установка дымососа не требуется. После газоходов газы через дымовую трубу поступают в атмосферу.
Газовый водогрейный котел 250 КВт должен быть укомплектован автоматикой. Заводская автоматика ограничивает предельно допустимые параметры работы, температуру и давление воды, минимальный расход теплоносителя, поддерживает минимально допустимое разряжение, регулирует работу горелки.
Водно-химический режим водогрейного котла должен быть организован в соответствии с требованиями руководства по эксплуатации и нормативной литературы по тепловым энергоустановкам и тепловым сетям. Для подбора водоподготовительной установки требуется провести химический анализ воды.
Все котельно-вспомогательное оборудование для подключения газового котла 250 КВт в Астрахани вы можете купить на нашем котельном заводе
Безопасность котла
Безопасная эксплуатация котла обеспечивается выполнением требований
- Инструкции по эксплуатации
- Правил устройства и безопасной эксплуатации водогрейных котлов с температурой нагрева воды не выше 115 °С
- Правил технической эксплуатации тепловых энергоустановок
Требования к помещениям котельной регламентируются СП 89.13330.2016 «Котельные установки»
Газовый водогрейный котел 250 КВт должен управляться автоматикой безопасности, имеющей сертификат соответствия.
Одним из самых важных устройств, обеспечивающих безопасную эксплуатацию водогрейного котла, является предохранительный клапан. Расчет пропускной способности для каждой мощности приведен в паспорте котла.
Необходимые условия монтажа и эксплуатации котла 250 КВт представлены в паспорте и руководстве по эксплуатации.
Гарантии изготовителя
На заводе изготовителе газовый котел 250 КВт подвергается гидравлическому испытанию давлением 0,9 МПа (9 кгс/см2).
Гарантийное обслуживание включает в себя бесплатное устранение скрытых заводских дефектов, замену деталей и узлов вышедших из строя в период гарантийного срока при условии монтажа и эксплуатации оборудования Покупателем в соответствии с его назначением, технической документацией, техническими нормами, правилами ввода в эксплуатацию и эксплуатации данного оборудования.
Срок эксплуатации газового котла 10 лет.
Купить котел 250 квт газовый в Астрахани
Промышленный водогрейный газовый котел 250 КВт - топливо газ; - температура 115 градусов; - отапливаемая площадь* от 1500 до 2600 м2; - отапливаемый объем* от 5000 до 8000 м3 (* диапазон для самого холодного и самого теплого региона РФ)); - применение для отопления производства, жилых зданий, цехов, складов, промышленных предприятий.
Предлагаем вам подобрать мощность водогрейного промышленного котла по отапливаемой площади и объему, с учетом типа строения и данных о температуре в регионе и в Астрахани, вида топлива.
Выбор водогрейного котла для котельной производится по каталогу отопительного оборудования нашего Котельного завода с помощью калькулятора подбора мощности. Водогрейные котлы отопления для промышленных предприятий предлагается выбрать из модельного ряда газовых, дизельных, мазутных, твердотопливных угольных и дровяных котлов, с ручными и автоматическими топками мощностью от 150 кВ до 4 МВт, и температурой нагрева теплоносителя до 115 градусов.
Подбор мощности водогрейного промышленного котла для отопления учитывает:
- температуру в самую холодную пятидневку в отопительный сезон. Для каждого региона РФ температура различна, данные берутся из СП 131.13330 «Строительная климатология»;
- тепло, необходимое для возмещения потерь тепла через ограждения, окна, двери здания и тепловые потери через не плотности строения и открываемые двери;
- температуру воздуха внутри помещений. Для различных типов и назначений строений она существенно отличается:
Тип отапливаемого строения | Температура внутри помещения |
---|---|
Жилые строения и административные здания | + 20 С° |
Больницы, детские сады | + 22 С° |
Учебные заведения, предприятия общепита, учреждения культуры, школы | + 16 С° |
Магазины и депо | + 15 С° |
Кинотеатры | + 14 С° |
Гаражи | + 10 С° |
Бани | + 25 С° |
- объем строения. Для определения наружного объема строения площадь по наружным стенкам строения на уровне первого этажа перемножается на высоту. Для панельных домов высота определяется: от уровня пола (нулевой отметки) до верхней плоскости теплоизоляционного слоя чердачного покрытия. Для остальных зданий высота определяется от уровня земли. Подбор мощности для отопления различных по назначению строений считается отдельно. Все полученные значения мощности складываются.
Подбор мощности водогрейного промышленного котла производится для общей суммарной мощности каждого отдельно стоящего задания.
Если вам требуется подобрать мощность котла в Астрахани для котельной с учетом вентиляции здания, горячего водоснабжения объекта, потерь в теплотрассе - необходимо производить более подробный расчет. Данный расчет мы можем произвести для вас бесплатно. Отправьте опросный лист и заявку на электронный адрес sale@kotel-kv.ru или позвоните по телефону 8 (800) 551-70-98.